Toggle navigation
市川市立国分小学校
ログイン
文字
背景
行間
トップぺージ
学校概要
学校概要
沿革
校章・校歌
学校案内図
交通アクセス
教育目標
教育目標
教育目標構想図
いじめ防止基本方針
行事予定
学校のお便り
学校のお便り
学校からお知らせ
学校だより
給食だより
保健だより
図書館だより
教育委員会等からのお知らせ
児童の様子
給食室より
図書室より
PTA/学校運営協議会/地域
新入生/転入生
トップぺージ
学校概要
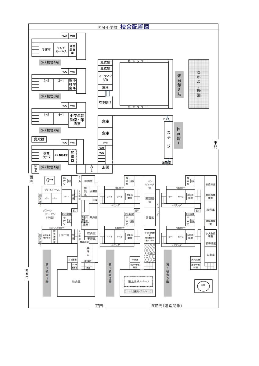
学校案内図
校舎内のようす
今後、必要に応じて更新していきます。
新校舎内のようす
新着順
新着順
登録順
タイトル順
1件
1件
5件
10件
20件
50件
100件
新校舎内のようす
写真:27枚
更新:2019/07/15
システム管理者
アクセスカウンター
3
8
0
0
5
メニュー
トップぺージ
トピックス